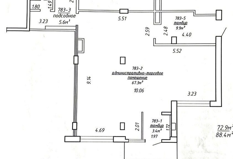
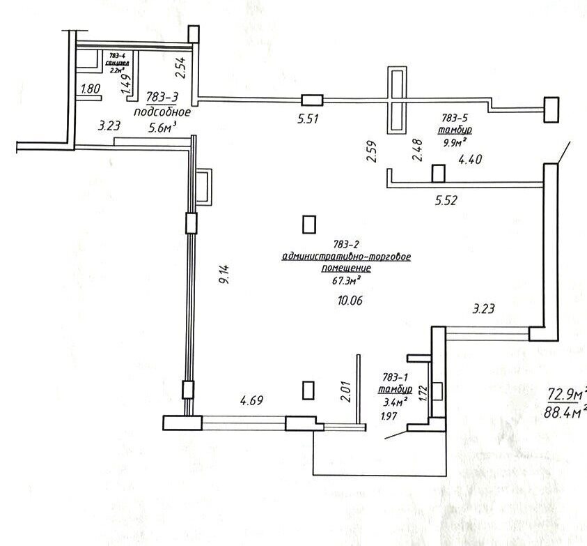
Торговое помещение, г. Минск, Беды 45 (88,4 м2)

Минск, Московский 15.02.2023 85 просмотров
Продано Продажа
Описание

Торговое помещение, г. Минск, Беды 45 (88,4 м2)

Продается помещение 88,4 м.кв на первом этаже жилого дома по улице Беды 45.

Есть постоянный арендатор. Быстрый срок окупаемости.

Вход и окна - витрины со стороны улицы.

Сделан современный ремонт, кондиционирование помещения, скоростной интернет.

Налаженный поток людей, отличный транспортный трафик, правильная локация.

Продажа от физического лица.

 

Частное предприятие по оказанию услуг Агентство недвижимости "ВАРИАНТ"

УНП: 192171788

Лицензия №02240/262 от 24.12.2013 г.

Договор № 19/2 от 06.02.2023

 

С арендатором заключен договор аренды с 2019 года.

Арендная выручка: 4000 BYN в месяц.

Окупаемость: 12 лет.

 

 

Основные сведения
Местоположение
Город:
Минск
Район:
Московский
Адрес:
Финансы
Стоимость:
497 656 BYN
Арендный поток / мес.:
4 000 BYN
Прибыль / мес.:
4 000 BYN
Окупаемость:
12 лет
Собственник
Физ. лицо
497 656 BYN ~ 168 697$
Площадь:
88 кв.м.
Арендный поток / мес.:
4 000 BYN
Окупаемость:
12 лет
Bizshop.by
Представитель собственника
Телефон:
Написать:
Подробнее

Лучшие объекты

Продажа
Минск, ул. Никифорова, д. 51 13.04.2026
Крупный ТЦ на ул. Никифорова, д. 51 | 50 % доли в бизнесе
Площадь
17184 кв.м.
Арендный поток
по запросу
Окупаемость
4 года
22 125 000 BYN ~ 7 500 000$
Продажа
Минск, Азгура 1 23.02.2026
Многофункциональное здание г. Минск, Азгура 1, (84 м2)
Площадь
84 кв.м.
Арендный поток
1 750 BYN/мес
Окупаемость
22 года
439 550 BYN ~ 149 000$
Продажа
Минск 09.01.2026
Торговый объект в престижном районе Минска
Площадь
75 кв.м.
Арендный поток
3 700 BYN/мес
Окупаемость
13 лет
607 110 BYN ~ 205 800$
Продажа
Минск 20.12.2025
Премиальный стрит-ритейл: ул. Сторожовская
Площадь
104 кв.м.
Арендный поток
5 100 BYN/мес
Окупаемость
15 лет
944 000 BYN ~ 320 000$
Продажа
Минск 20.12.2025
Торговое здание с двумя арендаторами, ул. Лынькова
Площадь
337 кв.м.
Арендный поток
13 900 BYN/мес
Окупаемость
12 лет
2 006 000 BYN ~ 680 000$
Продажа
Минск 19.12.2025
Стрит-ритейл: торговое помещение на Партизанском проспекте!
Площадь
240 кв.м.
Арендный поток
4 600 BYN/мес
Окупаемость
13 лет
767 000 BYN ~ 260 000$
Продажа
Минск 19.12.2025
Торговое помещение в элитном районе Минска!
Площадь
82 кв.м.
Арендный поток
3 860 BYN/мес
Окупаемость
18 лет
885 000 BYN ~ 300 000$
Продажа
Минск 19.12.2025
Торговое помещение в Лебяжьем, ул. Ратомская.
Площадь
208 кв.м.
Арендный поток
10 000 BYN/мес
Окупаемость
12 лет
1 472 640 BYN ~ 499 200$
Продажа
Минск 19.12.2025
Административно-торговое помещение с окупаемостью 9 лет!
Площадь
79 кв.м.
Арендный поток
3 240 BYN/мес
Окупаемость
9 лет
357 717 BYN ~ 121 260$
Продажа
Минск 19.12.2025
Многофункциональное помещение с хорошей арендной выручкой!
Площадь
кв.м.
Арендный поток
8 290 BYN/мес
Окупаемость
13 лет
1 300 360 BYN ~ 440 800$
Продажа
Минск 19.12.2025
Торговое помещение в премиальном ЖК Vogue
Площадь
101 кв.м.
Арендный поток
4 500 BYN/мес
Окупаемость
14 лет
744 875 BYN ~ 252 500$
Продажа
Минск 17.12.2025
Торговое помещение в потрясающей локации! Центр Минска!
Площадь
189 кв.м.
Арендный поток
12 005 BYN/мес
Окупаемость
13 лет
1 917 500 BYN ~ 650 000$
Выберите город.
Самый(ая) большой(ая) на рынке Беларуси в своем сегменте
  • портфель готового бизнеса;
  • база готовых Покупателей;
  • команда специалистов;
  • бюджет на рекламу;
  • опыт (более 15-ти лет).
Для Продавца
  • никаких предоплат;
  • минимальная на рынке комиссия за услуги (5 % по факту);
  • неэксклюзивный договор;
  • 10 % бизнеса мы продаем в первые три дня;
  • дополнительный сервис по сопровождению БЕСПЛАТНО: «Сопровождение сделки по продаже бизнеса «под ключ», «Безопасная сделка», «Регистрация ИП/ЧУП/ООО, открытие счета. Иные корпоративные вопросы».
Для Покупателя
  • никаких оплат при покупке бизнеса в нашей базе;
  • дополнительный сервис по сопровождению БЕСПЛАТНО: «Сопровождение сделки по покупке бизнеса «под ключ», «Безопасная сделка», «Проверка бизнеса перед покупкой», «Регистрация ИП/ЧУП/ООО, открытие счета. Иные корпоративные вопросы».
Читать политику конфиденциальности
Спасибо!
Информация успешно отправлена.
Мы свяжемся с вами в ближайшее время.