Стрит Ритейл г. Минск, Авакяна 19

Минск, Октябрьский 11.06.2019 67 просмотров
Снято с продажи Продажа
Описание

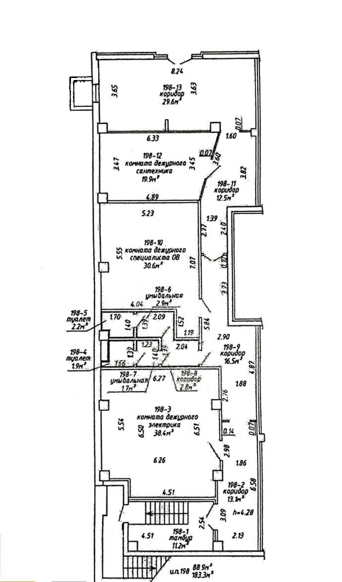
Продается помещение неустановленного назначения 183,3 м.кв. на ул. Авакяна 19.

Подойдет для оказания разного рода услуг, для размещения офиса, печатного производства.

Помещение расположено в подвале жилого дома ЖК “Изумрудный”. 

 

С арендатором заключен договор аренды с марта  2019 года.

Арендная выручка: 7 370 BYN в месяц.

Окупаемость (после уплаты налогов): 6 лет.

Основные сведения
Местоположение
Город:
Минск
Район:
Октябрьский
Адрес:
Финансы
Стоимость:
407 100 BYN
Арендный поток / мес.:
7 370 BYN
Прибыль / мес.:
5 899 BYN
Окупаемость:
6 лет
Собственник
Юридическое лицо
407 100 BYN ~ 138 000$
Площадь:
183 кв.м.
Арендный поток / мес.:
7 370 BYN
Окупаемость:
6 лет
Bizshop.by
Представитель собственника
Телефон:
Написать:
Подробнее

Лучшие объекты

Продажа
Минск, ул. Никифорова, д. 51 13.04.2026
Крупный ТЦ на ул. Никифорова, д. 51 | 50 % доли в бизнесе
Площадь
17184 кв.м.
Арендный поток
по запросу
Окупаемость
4 года
22 125 000 BYN ~ 7 500 000$
Продажа
Минск, Азгура 1 23.02.2026
Многофункциональное здание г. Минск, Азгура 1, (84 м2)
Площадь
84 кв.м.
Арендный поток
1 750 BYN/мес
Окупаемость
22 года
439 550 BYN ~ 149 000$
Продажа
Минск 09.01.2026
Торговый объект в престижном районе Минска
Площадь
75 кв.м.
Арендный поток
3 700 BYN/мес
Окупаемость
13 лет
607 110 BYN ~ 205 800$
Продажа
Минск 20.12.2025
Премиальный стрит-ритейл: ул. Сторожовская
Площадь
104 кв.м.
Арендный поток
5 100 BYN/мес
Окупаемость
15 лет
944 000 BYN ~ 320 000$
Продажа
Минск 20.12.2025
Торговое здание с двумя арендаторами, ул. Лынькова
Площадь
337 кв.м.
Арендный поток
13 900 BYN/мес
Окупаемость
12 лет
2 006 000 BYN ~ 680 000$
Продажа
Минск 19.12.2025
Стрит-ритейл: торговое помещение на Партизанском проспекте!
Площадь
240 кв.м.
Арендный поток
4 600 BYN/мес
Окупаемость
13 лет
767 000 BYN ~ 260 000$
Продажа
Минск 19.12.2025
Торговое помещение в элитном районе Минска!
Площадь
82 кв.м.
Арендный поток
3 860 BYN/мес
Окупаемость
18 лет
885 000 BYN ~ 300 000$
Продажа
Минск 19.12.2025
Торговое помещение в Лебяжьем, ул. Ратомская.
Площадь
208 кв.м.
Арендный поток
10 000 BYN/мес
Окупаемость
12 лет
1 472 640 BYN ~ 499 200$
Продажа
Минск 19.12.2025
Административно-торговое помещение с окупаемостью 9 лет!
Площадь
79 кв.м.
Арендный поток
3 240 BYN/мес
Окупаемость
9 лет
357 717 BYN ~ 121 260$
Продажа
Минск 19.12.2025
Многофункциональное помещение с хорошей арендной выручкой!
Площадь
кв.м.
Арендный поток
8 290 BYN/мес
Окупаемость
13 лет
1 300 360 BYN ~ 440 800$
Продажа
Минск 19.12.2025
Торговое помещение в премиальном ЖК Vogue
Площадь
101 кв.м.
Арендный поток
4 500 BYN/мес
Окупаемость
14 лет
744 875 BYN ~ 252 500$
Продажа
Минск 17.12.2025
Торговое помещение в потрясающей локации! Центр Минска!
Площадь
189 кв.м.
Арендный поток
12 005 BYN/мес
Окупаемость
13 лет
1 917 500 BYN ~ 650 000$
Выберите город.
Самый(ая) большой(ая) на рынке Беларуси в своем сегменте
  • портфель готового бизнеса;
  • база готовых Покупателей;
  • команда специалистов;
  • бюджет на рекламу;
  • опыт (более 15-ти лет).
Для Продавца
  • никаких предоплат;
  • минимальная на рынке комиссия за услуги (5 % по факту);
  • неэксклюзивный договор;
  • 10 % бизнеса мы продаем в первые три дня;
  • дополнительный сервис по сопровождению БЕСПЛАТНО: «Сопровождение сделки по продаже бизнеса «под ключ», «Безопасная сделка», «Регистрация ИП/ЧУП/ООО, открытие счета. Иные корпоративные вопросы».
Для Покупателя
  • никаких оплат при покупке бизнеса в нашей базе;
  • дополнительный сервис по сопровождению БЕСПЛАТНО: «Сопровождение сделки по покупке бизнеса «под ключ», «Безопасная сделка», «Проверка бизнеса перед покупкой», «Регистрация ИП/ЧУП/ООО, открытие счета. Иные корпоративные вопросы».
Читать политику конфиденциальности
Спасибо!
Информация успешно отправлена.
Мы свяжемся с вами в ближайшее время.