


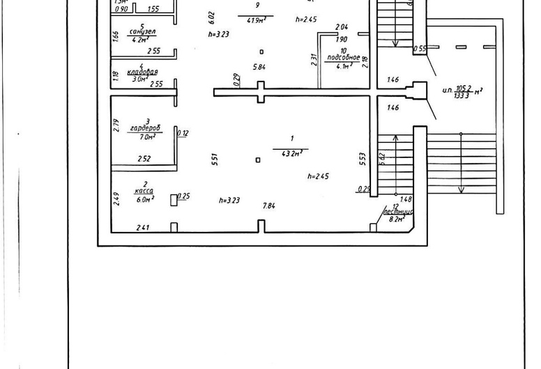
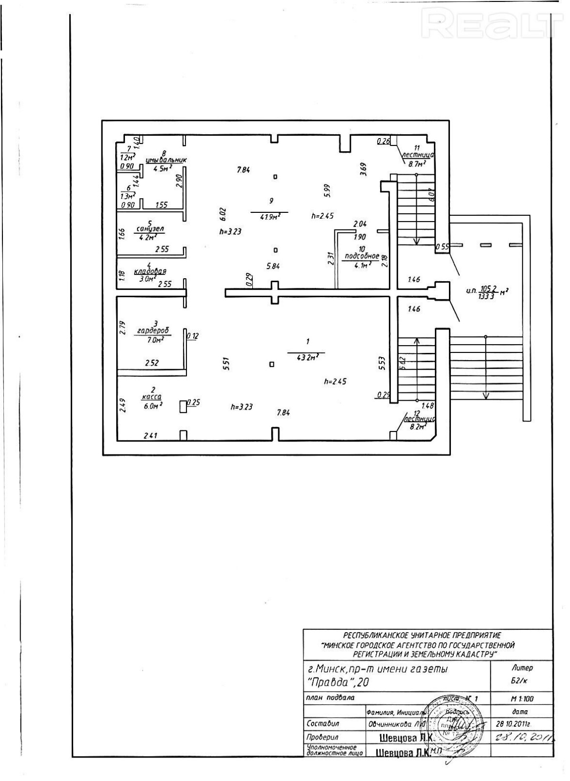
Продается помещение с арендаторами многофункциональное ( общепит, админ, склад) по адресу: г. Минск, просп. Правда газеты, 20/1
Площадью 125,8м.кв.
Рядом ст.м. Петровщина пр-кт Дзержинского, Московский р-н, г. Минск:
- не жилое здание
- многофункциональное назначение
- успешно и постоянно используемое арендаторами помещение
- любой режим работы
Быстрая расчетная окупаемость:
- срок окупаемости менее 8 лет
Не требует допвложений!
Уточняйте остальные детали по телефону!
Что такое безопасная сделка?
«Безопасная сделка» предполагает возможность хранения нашей компанией денежных средств Покупателя (например, вносимого задатка в рамках будущей сделки или полную оплату по бизнесу) и их передачу Продавцу только при условии выполнения последним всех гарантийных обязательств по продаваемому бизнесу:
До заключения основой сделки Покупатель имеет возможность не только проверить гарантии от Продавца, а также имеет полный доступ к финансовым показателям, доступ к оборудованию и иным материальным активам, возможность принять участие в непосредственной деятельности бизнеса, получает консультационное сопровождение от Продавца бизнеса.
Зачем нужна услуга?
Повышает безопасность сделки (в первую очередь, снижает риски Покупателя, повышает вероятность выполнения всех условий договора Продавцом).
Для клиентов нашей компании услуга бесплатная.
Наша компания проверяет:
Проверяются также иные данные о бизнесе в зависимости от его индивидуальных признаков.
Если Вы, как Покупатель, хотите получить индивидуальный подход при поиске бизнеса и профессиональное сопровождение процедуры покупки, то наша компания может предложить Вам услугу по поиску бизнеса по Вашим критериям.
Что Вы получите:
- возможность выбора лучшего бизнеса из рассматриваемого сегмента. С Вами будут работать все брокеры нашей компании. Мы знаем детали всех объектов, которые продаем!
- возможность получения информации по новым объектам до их фактической публикации на сайте компании;
- услуга «Проверка бизнеса перед покупкой»;
- услуга «Безопасная сделка»;
- услуга «Обучение от Продавца бизнеса. Срок: до 2-х недель»;
- услуга «Регистрация ИП/ЧУП/ООО, открытие счета. Иные корпоративные вопросы».
Стоимость услуги: 500 USD.